Aller au contenu
Chargement...
Inscription à la liste de diffusion
Connexion
Mot de passe oublié >
Devenir membre >
Accueil
À propos
Mission
Historique
Équipe
Conseil d'administration
Membres
Partenaires
Projets
Chat des artistes
CouturOscope
Bovril
Pi2 De Gaspé
Ste-Cath
Tour d'aiguillage Wellington
Ateliers
Type d'ateliers
Ateliers à louer
Devenir membre
Événements
Place au chantier
Rencontres internationales
Ressources
Documentation
Médias
Liens
Contact
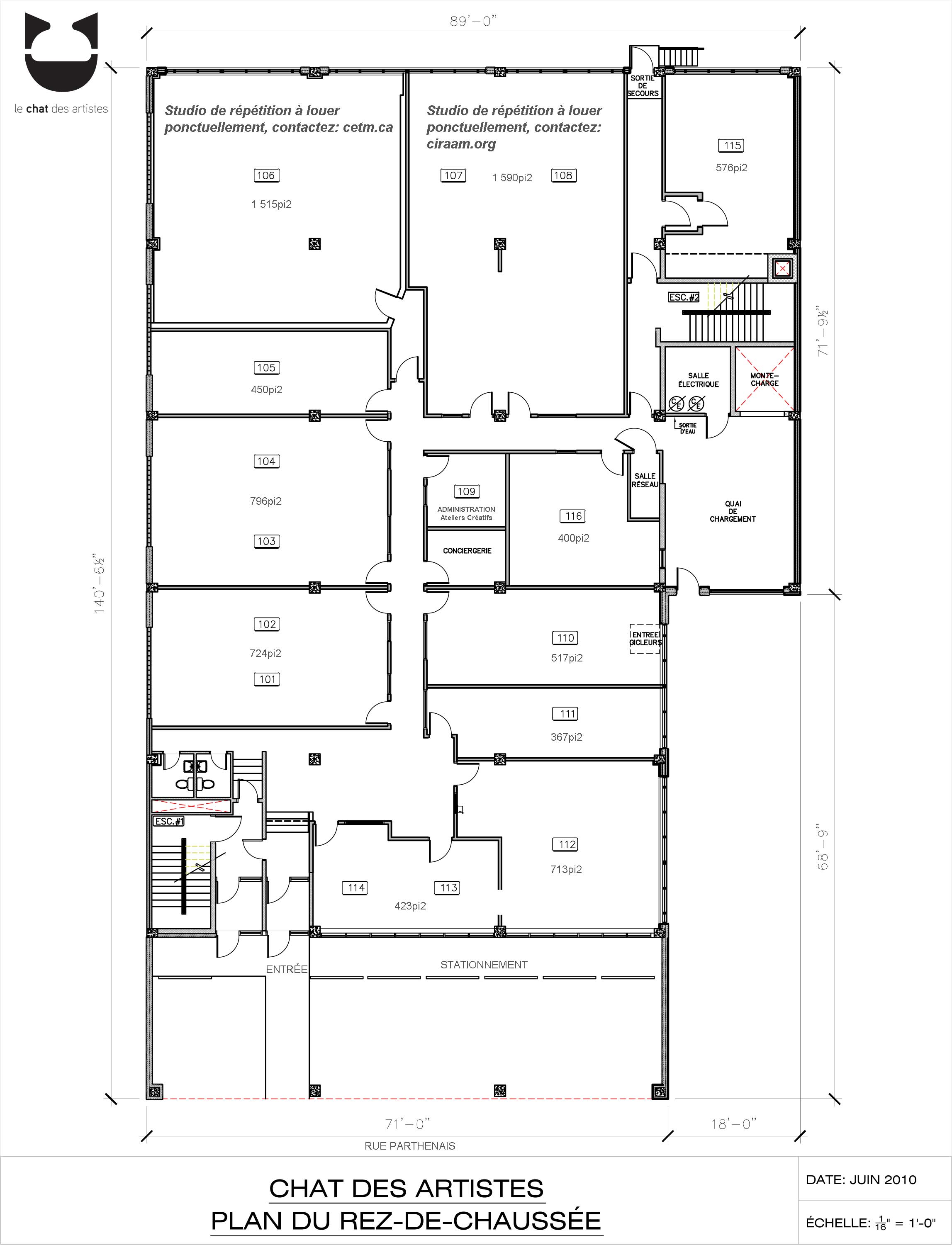
Plans du Chat des artistes
Télécharger le plan du rez-de-chaussée
Télécharger le plan du 2e étage
Télécharger le plan du 3e étage
Sidebar
Le projet
Les artistes du Chat
Salon du Chat des artistes
Plan du Chat